Regomir

Type

Refurbishment

Location

Barcelona, Spain

Category

Private

Status

Project

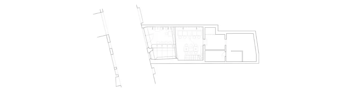
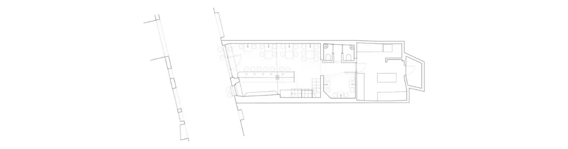
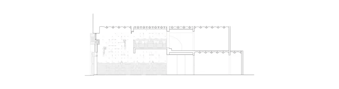
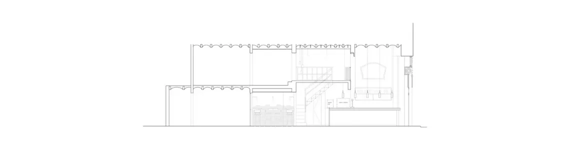
In the Gothic quarter of Barcelona, the renovation of a bar is proposed, which has lost its essence due to several overlapping renovations that have caused it to lose a coherent atmosphere. The proposal strips the premises of these superimposed layers, such as the wall covering with wooden panels and the false ceiling that hides the well-known “Catalan volta”. In this way, the materiality that it once had is returned to the premises, which requires very little addition. A dark plinth painted up to the height of the tables decants the center of gravity towards the floor, and allows the decorative elements of the walls to be emphasized, making the dark legs of the tables and chairs almost disappear and emphasizing the horizontal plane of the wooden tables, where food and drink will rest. A homogeneous mesh of metal supports is arranged on the wall, which allows the creation of a system of modular shelves with total freedom of arrangement, with the aim of housing different changing objects depending on the time of year. Soft, enveloping lighting gives the space a pleasant and welcoming atmosphere. Luminaires with screens are chosen, which act as light filters, making it softer and more diffused. A perfect environment to enjoy a market dinner in a young atmosphere but with the weight of the old.

Skip to content
This site is registered on wpml.org as a development site.