Llibertat

Type

Refurbishment

Location

Barcelona, Spain

Category

Private

Status

Finished

The streets name explains the projects concept very well. Translated from Catalan, Llibertat means Liberty.
Thus the project follows in his organisation this idea and concept for the total renovation of this apartment in the middle of the village structure of Gracia, a unique neighbourhood in Barcelona.
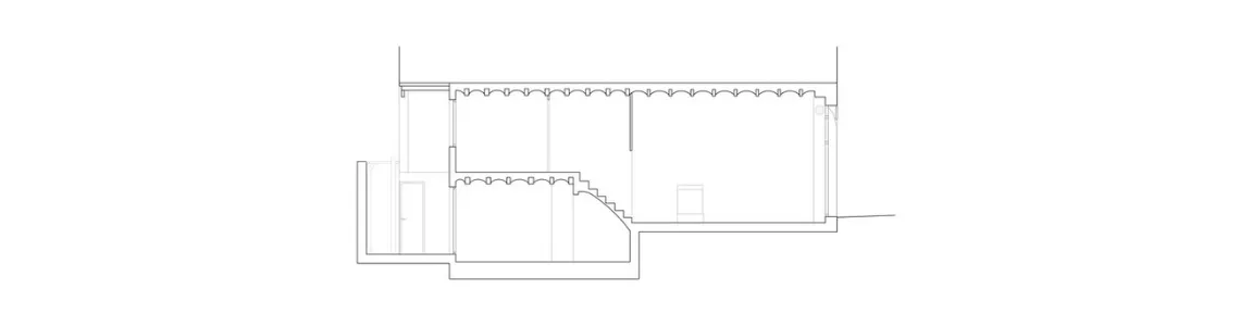
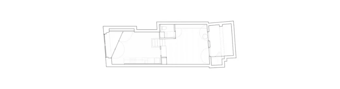
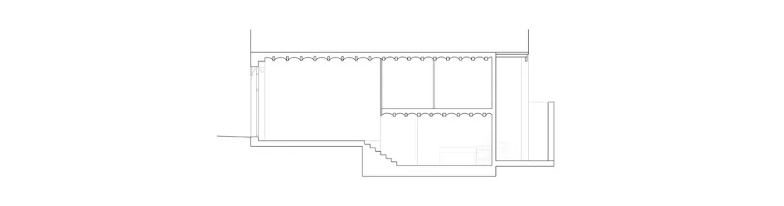
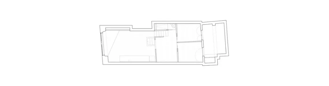
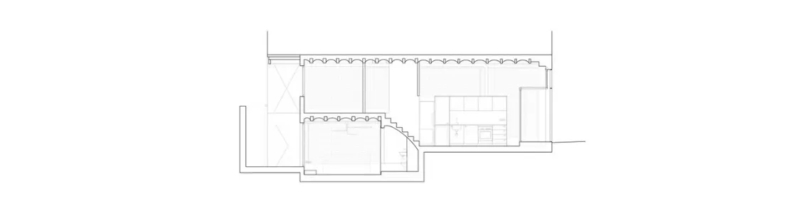
The original structure of the building goes back to the years around 1850, which characterises the apartment with its horizontal division in three different spaces. One one side we find the entry hall, directly connected to the street “Llibertat”, which served as vegetal and fruit store some decades before, on the other side of the apartment the more private spaces separated into two different floors. Spaciously connected through a inner courtyard with double height, which demonstrate the private counterpart to the more public entrance level.
The refurbishment liberated the floor plan from some subdivisions and reorganised it in a different matter. Therefore the kitchen moved to the middle floor and forms together with the newly created triangular entrance the welcoming entry hall. This space with its ceiling height of nearly four meters could be used as dinner area or office room a the same time.
The lower space is now transformed into the new salon with direct connection to the inner courtyard, allowing the combination of salon and dinner area at the same time. The bathroom is divided into two rooms and placed into the narrow spaces next and underneath the stairs, thus using every single functional space. The serving spaces are therefore separated from the rest of the apartment which allows a more liberated and free floor plan.
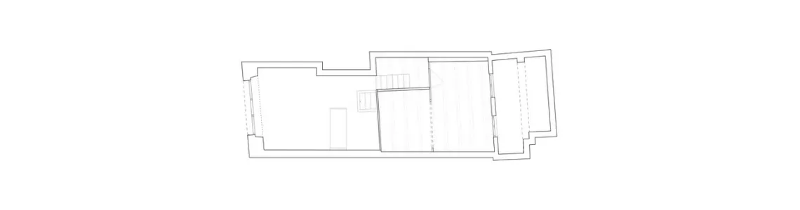
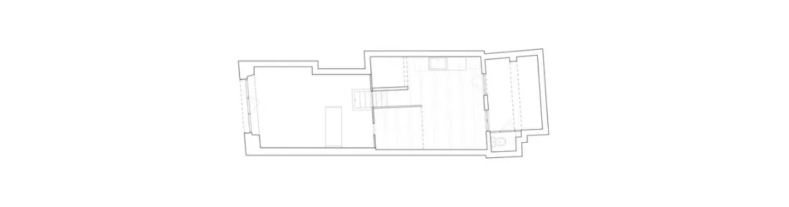
On the mezzanine floor the organisation is marked by two sleeping rooms, reduced to its minimal size, serving completely its function of recovery. In addition the two rooms share a commune dressing/office space which builds the filter between the sleeping area and the restroom and access.
The places opening extends the visual space throughout the hole street “Progres” and connects the private spaces with the kitchen and its entrance.
The true Liberty is found on one hand in the exempt floorplan such as in the functions of the different rooms, which allow to adapt them to the private necessities and different living forms of each inhabitant.

Skip to content
This site is registered on wpml.org as a development site.