Karin Dom

Type

Open Competition

Location

Varna, Bulgary

Category

Public

Status

Unbuilt

The new building of Karin Dom refers more to the greenery than to the surrounding volumes, establishing a dialogue between its architecture and the existing garden that empowers the creation of a bound between children and nature.
Nevertheless, in the urban strategy it forms an important part of the structure by closing the ensemble of the surrounding volumes and therefore forming a shield of protection, while additionally enclosing a defined garden area in its centre.
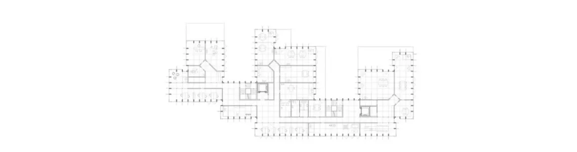
The different programs are organised within separated pavilions placed in between the existing trees. This generates a transparent understanding of the building and connects every room to its enclosed part of nature. Additionally, the pavilions define the green area by creating different courtyards with unique characters reacting to each functional program.
A large and welcoming lobby is the starting point from where pathways will lead the visitor to the different programs of Karin Dom. Two vertical connections ensure the communication between the different levels and articulate the division of the pavilions.
While the first vertical connection joins the lobby and the central functions of Karin Dom, the second one serves special programs such as the swimming pool and the medical centre and connects them to their own independent access.
The wood construction of the new building expresses the friendly and integrating character of the project, focusing on natural, warm and sustainable materials, strengthening the connection between children and nature. An atmosphere and a sense of security by openness and transparency is perceived, while at the same time is always the possibility to retreat in cosy spaces.
The proposed structure adds a unique grid to the building. This allows flexibility and an economic construction while at the same time emphasises the easy to understand layout of the building.
On the upper floors, the modularity of the building opens up the possibility of green terraces as outdoor spaces and therefore increases the amount of green space on the plot.
The fold able facade-elements add an additional layer to the building and enable the control of direct sunlight through their perforated panels. This gives the volume a versatile facade as it will change during the day, adapting to the incoming sun.
Ventilation casements in the exterior skin as well as the openings to the terraces and the garden will allow short time cross ventilations to renew the air in the spaces between use.

Skip to content
This site is registered on wpml.org as a development site.