Glarisegg

Type

Competition, final round

Location

Glarisegg, Switzerland

Category

Public

Status

Unbuilt

The social foundation of the Schulstiftung Glarisegg” was formed to create a natural school environment for children with special needs who demonstrate problems with learning and concentration. The foundation area is based right on coast of the lake Bodensee, surrounded by groves of trees and wide fields, in the middle of nature.
The task of this open competition is based on the enlargement and reconstruction of the existing school structure and adding a adequate architecture language to this new formation. The program asks for bigger and modern classrooms as well as a bigger multi purpose hall, placed around some pre existing protected buildings, which currently form a central courtyard.
The existing situation is characterized by its direct contact to nature and green areas, which are constructing different filters of privacy around the hole area. In its centre a composition of protected volumes with a nearly urban kind character reminds the prior use and organization of the complex. The hole area lives from a transition between a centric urbanity and its perimeter of countrified landscape. This project aims to strengthen this existing qualities and highlight the controversial between urban and rural characterizations. A clear and strategic emplacement of the new volumes transform the diffuse centric yard into a defined monastery like representative courtyard.
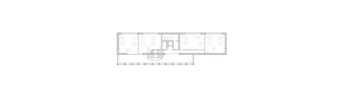
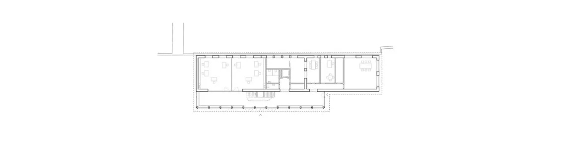
All the serving functions as well as the multi purpose hall are therefore combined into a elongated volume defining the constructive limit of the areal towards west. With its precise emplacement, slightly towards south, the project is able to integrate the solitaire house into the campus and define a clear limit of the courtyard. The massive base applicates a unifying character to the building while the light wooden construction defines the upper limit of the facade. The rhythmic pillar sequence reinforces the memory of a typical monastery complex with its centric courtyard.
The materialization of the facade clearly displays the different functions and uses behind the wall, where as the serving functions are placed in the basement and oriented towards the backside of the complex. The three sided transparency on the front of the multi purpose hall stands directly for the continuance between exterior and interior, connecting the green landscape with the inner courtyard.
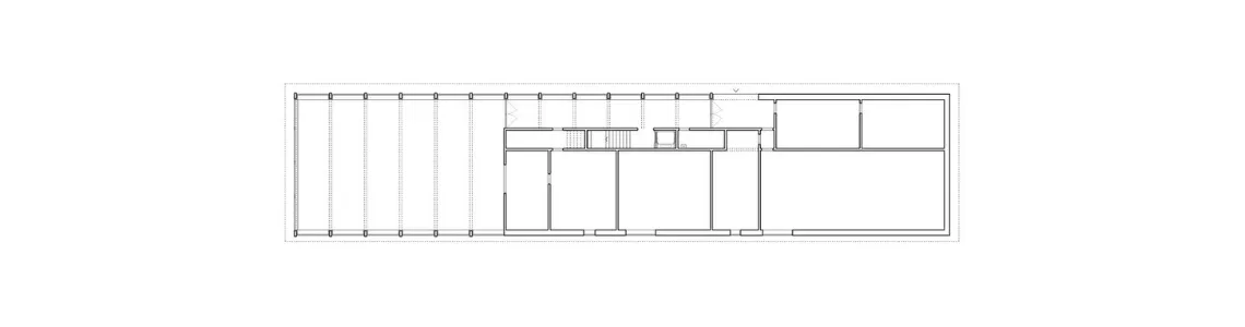
This movement in the functional program liberates the old maintenance building from its liabilities and transforms it into a open and transparent pavilion, which can be used as outdoor playground or for outdoor school activities. With its completely open facade it is now an important building within the structure, not being understood as the piece which divides the area, but which connects all the different spaces. The old school building forms an important part of the existing complex and will therefore maintain its function, newly adapted to house all the needed classrooms and required modern school standards which are currently divided into two buildings. The project aims to maintain the historic walls and reduce the footprint of the volume. In consequence the building slightly grows in hight and reduces its longitudinal impact by regaining the connection of the lake with the inner courtyard.
The transparent courtyard facade of the building works as part of the ambulatory that integrates the common spaces and circulations of the school, while at the same time establishing a connection towards the other surrounding buildings as it were a cloister.
The landscape is projected by proposing a hierarchy of paths and squares for the whole area of the Schulstiftung Glarisegg. The main arrival narrows from the parking space and becomes a newly created pedestrian path reaching out to the central square, surrounded by the main protected buildings.
This square acts as a startpoint throughout the hole area and marking different ways towards the buildings, enlarging their impact on each entrace.
As a result of the reorganisation of the area, the court is moved centric into the yard, taking advantage of the smooth topography by creating benches and different green platforms.
The natural perimeter aorund the area, formed by trees and the lake, is understood as a filter that applicates different levels of privacy to the schoolground. A small path unites different key pionts of the place, appearing like an excursion throughout the area.

Skip to content
This site is registered on wpml.org as a development site.