Camil Fabra, Barcelona

Type

Refurbishment

Location

Barcelona, Spain

Category

Private

Status

Finished

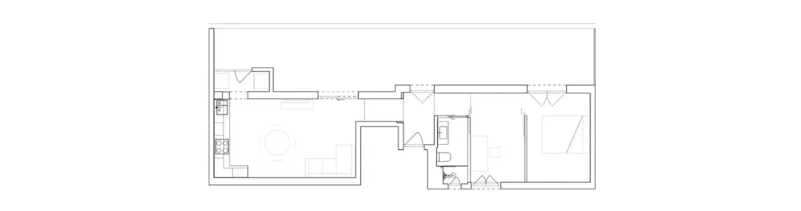
This project includes a integral renovation of an attic apartment with 50 square meters, situated in the middle of the city of Barcelona, in its residential quarter of Sant Andreu. The apartment is organized in a longitudinal manner, placing almost every room at the exterior facade connected to the generous terrace with nearly as much space as the apartment itself. The original character of the dwelling is defined by an old concept, subdividing the space in small rooms with low ceilings, provoking a dark and compressed feeling. In addition to the already dark atmosphere, the only window in the centric entry hall had been plugged by the previous owner, re forcing the obscured character of the hole structure.
The main concept behind this refurbishment is based on reconnecting the outer terrace with the inner living space by creating an open and bright room program. This is possible by connecting the different small spaces, adding them to one another and therefore creating bigger and more fluid spaces. This operation allows to appreciate long diagonals views through the apartment, underlining the longitudinal character of the flat.
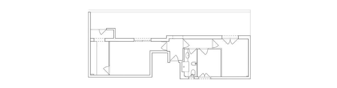
Thanks to small impacts such as opening the closed window and destroying the corridor wall, the hallway is reduced to a minimum and therefore brighten up. Two strategic positioned sliding doors allow to understand the old hallway as a room sequence between bedroom-office-bathroom-entrance, like a diaphragm shortening or extending the space on behalf of the requirement of
the owners.
The false ceiling is reduced to the minimum to allow enough storage space, placed on both sides of the access hall, taking the function as a threshold between the spaces.
The last intervention is focused on the elimination of the wall between living room and the kitchen, opening the full possible space and understand it as one. By adding the new kitchen as a furniture, the hole space is understood as one fluid room.
With these adaptations the hole apartment is converted into a open space, where the different rooms can be added or subtracted easily. With the open structure the flat gains more luminosity and recreates the connection to the terrace and their impressive views to Collserola and the Tibidabo.

Skip to content
This site is registered on wpml.org as a development site.