Basel, Hochbergerstrasse

Type

Open Competition

Location

Basel, Hochbergerstrasse

Category

Public

Status

Unbuilt

The coast of the famous river Rhein” which is crossing the city of Basel, is facing a massive change during the coming years. The idea of the masterplan is based in transforming the old industrial factory buildings into vibrant living area, combined with large green spaces leading into a sustainable future. The old industrial structures are aimed to be transformed into housing facilities without loosing their original character.
The city of Basel owns an unused administration building on the border of this masterplan and decided as result of the masterplan to transform it into a low budget housing project.
The proposed project aims to maintain the industrial character and minimize the impact on the facade. The new organization of the facade still allows to divine the old usage while at the same time shows the interior change of its use. It allegorates the change of the hole quarter and stands for a positive reusing of old structures. The subtle tones of green shows the individuality of each inhabitant in an otherwise generic form of expression of the facade. With this vividness the building fits perfectly into the green surrounding, formed by the trees along
the river.
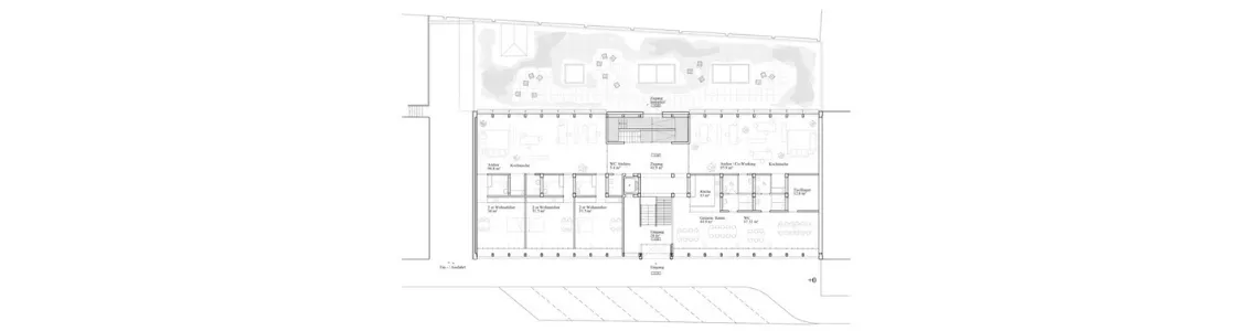
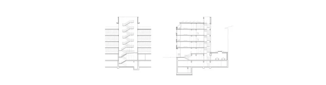
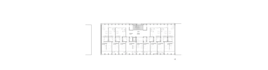
A wide and bright entrance opens the structure towards the street and connect it with the live of the quarter. With its slightly elevated communal space, the project orients itself towards the street and therefore shows the open and semi public character. The centric staircase is designed not only for its function but as well as a core of light. With strategic openings it allows diagonal visual connections between the different parts and floors of the building. The minimized corridors expand in their width and applicate a generous spatial feeling, which converts the dull corridor in an attractive communal area.
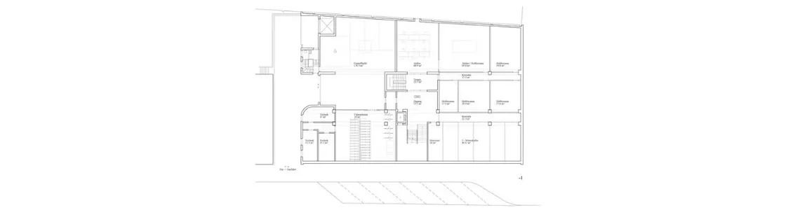
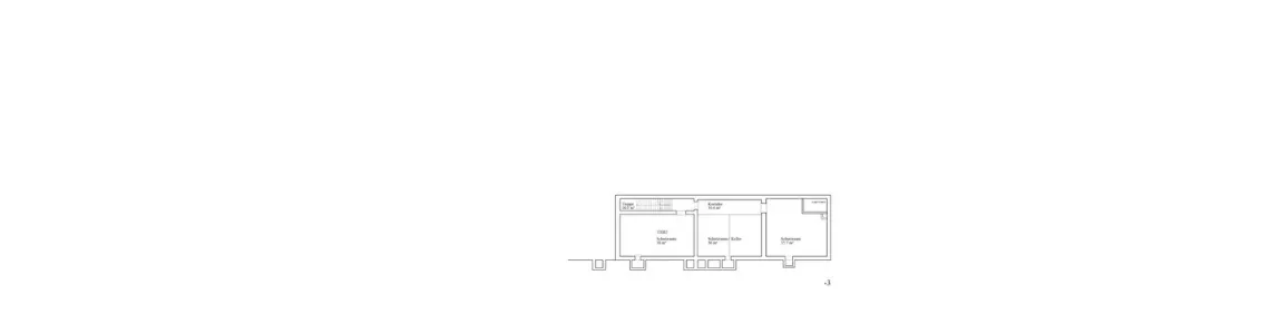
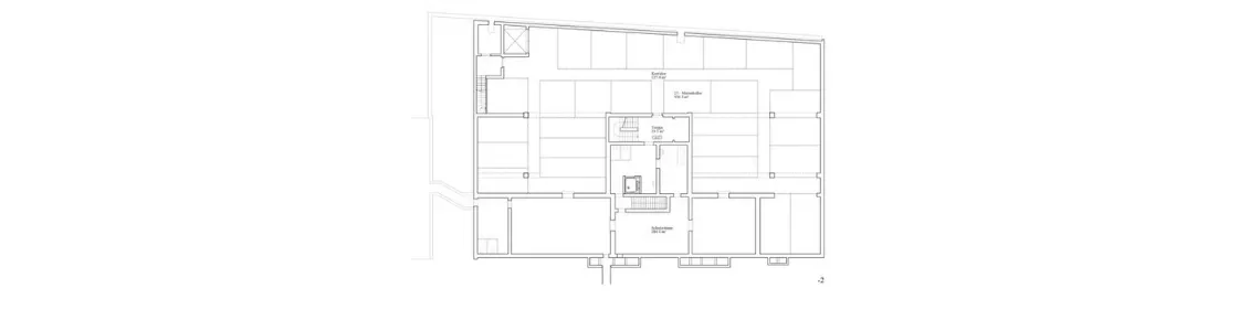
The underground floor is designed as a semi-public space, used by Ateliers and manual rooms whereby the ateliers are spreading themselves up to the ground floor converted into an living-working atelier. The top floors are horizontally and vertically organized by different levels of intimacy/public. The ground floors are organized in three sectors, where the central sector aims as serving zone and dividing the living- and bedrooms. The daily structures of the apartments are organized towards the green patio an the corridor and therefore create transparent connections between the neighbors, underlining the commune style of living. With the south oriented private structure the building receives a clear contrast and division while at the same time receiving daylight all day long. The private galleries not only work as terraces but also as climatic puffers in winter and The generous diagonal connections are the result of a slightly displaced room organization
summer.
The ground- and attic floor are completed by green communal spaces, which allows the integral usage of the building.

Skip to content
This site is registered on wpml.org as a development site.